Мобильный бетонный завод МОБИЛ-25
В наличии
Описание / Мобильный бетонный завод МОБИЛ-25
Быстровозводимый мобильный бетонный завод МОБИЛ-25
Мобильный бетонный завод МОБИЛ-25 способен производить до 25 кубических метров бетона в час. Удобен в транспортировке — его можно перевозить в 20-тонном контейнере или на грузовике с аналогичной грузоподъемностью.
Область применения: отлично подходит для изготовления тротуарной плитки, бетонных колец и блоков, а также может эффективно использоваться непосредственно на месте крупного строительства.
Базовая комплектация бетонного завода МОБИЛ-25:
- Двухвальный бетоносмеситель БП-2Г-375;
- Опорная рама;
- Дозирующий комплекс ДКМ-8;
- Блок дозаторов БД-15;
- Компрессор Abac B 4900B/100PLUS CT 4;
- Пульт управления ПАМ;
- Комплект для сборки и подключения 20.
Дополнительные опции:
- Система аэрации силоса СЦМ;
- Система аэрации силоса СЦ;
Ввод в эксплуатацию: Завод поставляется уже в готовом виде. Установка должна происходить на открытой площадке или же в помещении с высотой потолка не менее 4 метров. Подключение к электроэнергии (не менее 380 Вольт) и водоснабжение занимает около двух часов.
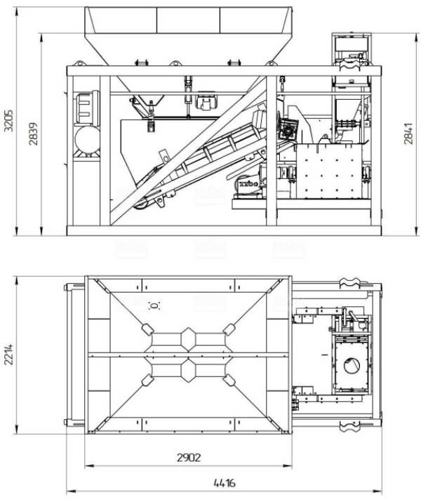
Основные параметры бетонного завода МОБИЛ-25:
- Бетоносмеситель: БП-2Г-375
- Производительность, м3/ч: 10...25
- Объем загрузки, л: 375
- Объем готового замеса по бетону, л: 250
- Объем готового замеса по раствору, л: 300
- Бункера (количество объем куб.м): 2х4
- Вместимость силоса цемента, т: -
- Подача инертных в бетоносмеситель: конвейерная
- Габаритные размеры (ДхШхВ), мм: 4450х2215х3205
- Масса, кг не более: 4000
- Габаритные размеры смесителя (ДхШхВ), мм: 2150х1750х1450
- Масса смесителя, кг не более: 1000
- Расход воды, л/ч: 6000

Принцип работы в автоматическом режиме по принципу «одна кнопка»:
- Инертные (песок, отсев, щебень и прочее), используемые в производстве бетонного раствора, распределяются по отсекам бункера инертных по наименованию. Количество бункеров равняется 2 шт. Таким же образом, распределяются по классу цемент в силосе, вода и добавочные вещества в расходные баки.
- После выбора определенного рецепта для приготовления бетона, вводится требуемый объем (м³). После этого установка приступает к производству.
- Инертные взвешиваются по отдельности, по массе заданной в рецепте. Взвешивание происходит в результате открытия заслонок бункера инертных и высыпания их на весовой конвейер.
- Отдозированные инертные посредством весового конвейера подаются в бетоносмеситель.
- Цемент, вода и различные добавки подаются в соответствующие дозаторы, где взвешиваются в зависимости от рецепта, заданного в автоматизированной системе.
- После дозирования все составляющие бетонораствора по очереди, через заслонки дозаторов, подаются в бетоносмеситель.
- Смесь из всех компонентов перемешивается в бетоносмесителе в течении определенного времени и в виде бетонораствора подается через сливной затвор смесителя.
Проверено лабораторией неразрушающего контроля!
Подробнее
| Code 1C | 0А-50590 |
|---|---|
| Состояние | Новое |
| Гарантийный срок, мес | 12 |